From the blog:
74DR
Transformation of a traditional 4-bedroom home into a modern 5-bedroom HMO
This project involved the full conversion of a traditional four-bedroom house into a contemporary five-bedroom House in Multiple Occupation, including a newly created loft bedroom to maximise the property’s accommodation potential.
The layout was redesigned to support comfortable shared living, introducing spacious communal areas such as a modern kitchen, dining space, and living room – providing a practical and appealing environment for tenants. Alongside the internal refurbishment, the exterior of the property was upgraded with brand-new fencing to both the front and rear gardens, improving privacy, security, and overall visual appearance.
Safety and compliance remained a key priority throughout the project. The property has been completed in accordance with current Fire Safety regulations, ensuring a secure living environment for residents. Each bedroom is fitted with DigiLocks, providing convenient and reliable keyless access while enhancing security for tenants.
The finished result is a well-planned, compliant, and comfortable HMO where residents benefit from both private living space and welcoming communal areas – reflecting our commitment to quality, functionality, and long-term durability.
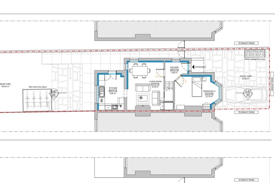
Floor Plans
To find out how we can help you enhance the value of your property with a HMO conversion click the button below and contact us using one of the options.

